Contemporary, Healthy, and Sustainable New Build
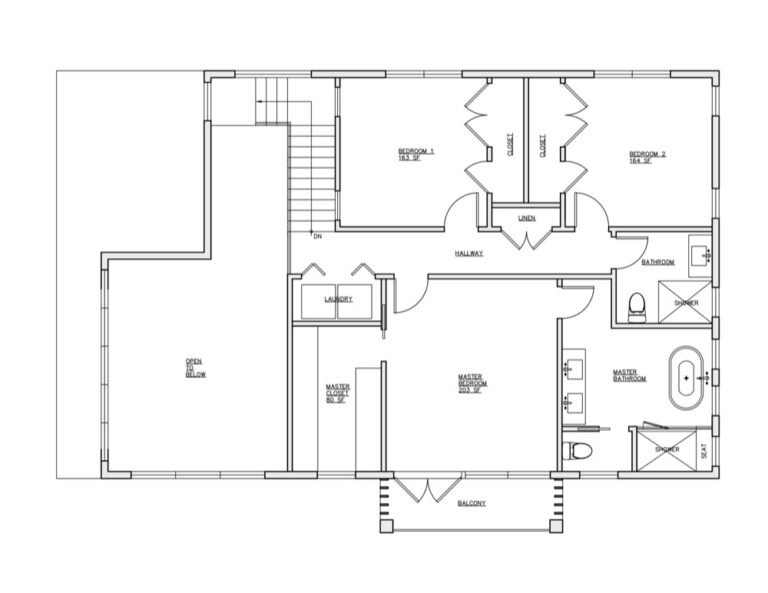
We designed this house as a new build over an existing foundation of an abandoned house.
The clients were looking for a contemporary design that would integrate the required spaces and layout that fit their lifestyle with a fresh, light-filled atmosphere.
Using the same existing foundation footprint, we designed a completely different house functionally and aesthetically.
